Aktualizováno 8.1.2026

Fajna zastávka

2025
Záměr
2025
Příprava
2025
Realizace
»
2026
Dokončeno

O projektu

Cílem projektu je oživit veřejný prostor v Kunčičkách, kde podobných míst pro setkávání zatím mnoho není.

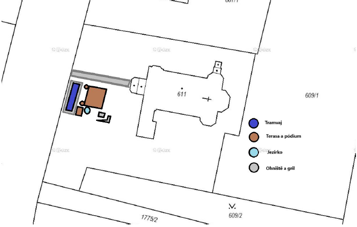
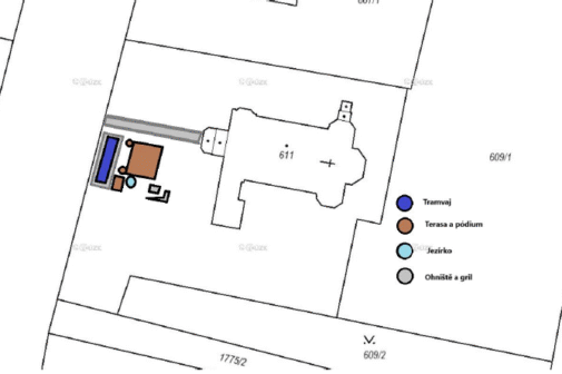
U kostela sv. Antonína z Padovy v Ostravě–Kunčičkách vzniká nové veřejné místo pro setkávání, odpočinek a drobné kulturní akce. Projekt Fajna zastávka, který realizuje spolek Slezská lilie z. s., navazuje na dlouhodobé komunitní aktivity v této části města a reaguje na potřebu nabídnout místním i návštěvníkům příjemné místo k posezení a relaxaci.

V rámci programu Tvoříme prostor zde vznikne venkovní terasa vybavená dřevěnými stoly a lavicemi, automatickou markýzou pro zastínění a přenosným ohništěm s grilem. Součástí projektu bude také malé pódium pro přednášky či komorní vystoupení a automatické promítací plátno, které umožní promítání filmů nebo prezentací pod širým nebem.

Z vlastních zdrojů spolku bude realizováno okrasné jezírko s cirkulací vody, které dotvoří atmosféru celého prostoru. Dále budou doplněny herní prvky a houpačka, stejně jako výsadba rostlin, které místo zútulní a dodají mu přírodní charakter.

Na přípravě i údržbě se aktivně podílejí dobrovolníci, farníci a místní obyvatelé. Společně tak vdechují život prostoru, který má ambici stát se přirozeným centrem komunitního dění – místem pro sousedská setkávání, malé kulturní akce, nebo jen klidné posezení po bohoslužbě u kávy a něčeho dobrého.

Stav: realizace
Realizace: 7. ročník
Žadatel: Slezská lilie z.s.
Poskytnutá dotace: 200 000 Kč
Umístění: ul. Třebízského 445/14, 718 00 Ostrava – Kunčičky
GPS souřadnice: 49.8091069, 18.3054356

–> ZAPOJIT SE MŮŽE KAŽDÝ<–